









Ref 706
If you're on the lookout for a fantastic investment let us introduce you to 'Elmfield'- a real gem packed with potential!
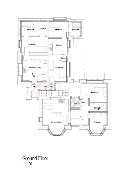
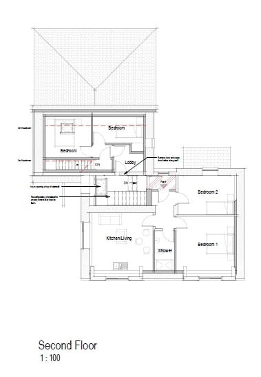
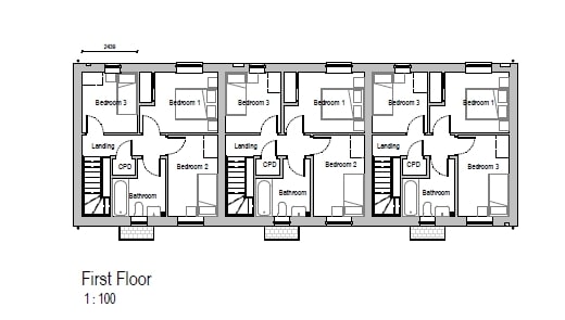
This impressive period property is just waiting for someone with vision to take advantage of its full planning approval for six spacious, luxury apartments. But that's not all- there's also the green light to build three roomy three-bedroom townhouses right in the grounds. Each of these new homes will have private parking, gardens, and access to the lovely shared spaces.
All the essentials are sorted: utilities are accessible on the edge of the site and you're just a hop, skip and a jump from Barnstaple with all its handy amenities and transport links.
'Elmfield' still boasts plenty of its original charm and character, making it a truly special place to breathe new life into. With both the elegant main residence conversion and three thoughtfully designed townhouses, this project offers something unique for investors and homebuyers alike.
And in case you need it, here are the details for the local council: North Devon Council, PO Box 379, Barnstaple, EX32 2GR. Planning application: 78095
EPC rating: G. Council tax band: X,| PROPERTY SUMMARY | |
|---|---|
| Reference | 706 |
| Price | £575,000 |
| Type | Commercial |
| Summary |
Fabulous Development Opportunity! |